The Northwest Energy Efficiency Alliance (NEEA) recently published a study seeking to compare one-for-one luminaire level lighting control (LLLC) retrofits with a comprehensive networked lighting controls (NLC) redesign. Conducted by the University of Oregon, the study found that a one-for-one LLLC upgrade produced comparable energy savings and lighting quality at a competitive cost.
LLLC involves installing LED luminaires, each embedded with one or more sensors, a luminaire controller, and a dimmable driver. This allows the luminaire to operate as an independent control zone. As a typical luminaire in an open office serves 80-120 sq.ft., this results in the highest degree of granularity in responsiveness, which typically produces maximum energy savings.
The control input is occupancy- and where applicable daylight-responsive. The control output may be ON/OFF, multilevel switching or dimming, or continuous dimming. Separate manual controls allow user override.
The luminaires may operate as independent control systems or unify within a connected system via installation of a gateway, which allows programming of sequences of operation and commissioning via software. As the luminaires are individually addressable in this scheme, they can be grouped for larger zone control. Additional control strategies can be deployed such as scheduling, plug load control, individual task tuning, and institutional task tuning (demand response and/or high-end trim). If two-way communication is featured, occupancy data can be fed to a server or the Cloud for monitoring and space utilization analysis.
NEEA engaged the University of Oregon to investigate whether LLLC installed in a one-for-one LED retrofit generated energy savings and lighting quality comparable to a comprehensive NLC redesign.
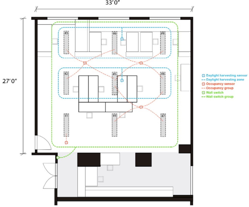
The researchers set up four workstations at the center of an 891-sq.ft. space that was 33 ft. wide east-west and 27 ft. deep north-south, with perimeter glazing along the northern face, as shown in the below plan. The baseline lighting system consisted of nine 4-ft. indirect/direct 32W T8 pendant luminaires laid out on a 3×3 grid and controlled by a wall switch.
Five systems were installed, which included four LLLC options of increasing features (most of them qualifying them as networked lighting control systems themselves) along with a more comprehensive NLC system. The NLC redesign system featured remote ceiling-mounted sensors (four occupancy, two daylight, configured as shown below) and software-based control zoning of luminaires as well as data output for space utilization and asset tracking. All options involved a one-for-one replacement of the fluorescent luminaires with LED luminaires tuned to produce around 30 footcandles.
Study participants performed various tasks and responded to questionnaires that generated subjective impressions of quality of light, brightness, light distribution, visual comfort, and wellbeing. Current transformers monitored lighting power draw. Additional information was collected about ease of installation, time to install, and installed cost.
Based on the monitoring, the LLLC options generated 50-74 percent energy savings for the controls alone (not including the LED upgrade), while the NLC solution demonstrated 67 percent savings. The researchers acknowledged the space was particularly well suited to LLLC as opposed to a more comprehensive solution. The highest-performing LLLC had additional features such as scheduling, task tuning, plug load control, and energy monitoring. The NLC performed best for savings due to high-end trim but lowest for occupancy and daylight sensing, which is due to fewer sensors and less granularity in the control response. And of course the NLC provided a significant non-energy benefit related to occupancy tracking.
All of the systems installed generally smoothly and without delays, though there were some challenges in equipment acquisition. The time and complexity involved in programming and commissioning varied across the systems. Participants regarded the indirect/direct lighting favorably but without any clear preference across the control systems. In this space, the installed cost for the LLLC was roughly one-third to one-half of the NLC redesign option.
The researchers concluded the one-for-one LLLC retrofits are cost-competitive and provide comparable performance as more comprehensive NLC solutions.
to download the study.
























